- Home
- City Hall
- Departments
- Community Development
- Accessory Dwelling Units
- Pre-Approved ADU Program
Pre-Approved ADU Program
The City of Laguna Niguel has established the Pre-Approved ADU Program to streamline the process of constructing accessory dwelling units (ADUs) within the City. Residents can choose from three pre-approved plan sets based on their preferences, featuring different sizes and architectural styles available for download. This page aims to assist users interested in taking advantage of the program by providing helpful resources, including handouts that explain the program, answer frequently asked questions, outline the process, and offer considerations to keep in mind when planning to construct an ADU.
Benefits of the Program
- The Pre-Approved ADU program streamlines the process of obtaining permits and building an Accessory Dwelling Unit (ADU) for individuals who may not be familiar with construction and development.
- Users can download the plans for free, which helps eliminate the need to hire design professionals.
- Since the plans are pre-approved, the permitting timeline is shortened, and only the site plan and the final location of the ADU require review.
- ADUs provide opportunities for older family members to age in place with nearby support while maintaining their independence.
Pre-Approved ADU Program Handbook
A handbook has been created alongside the approved plan sets, providing additional information on the Pre-Approved ADU Plans.
Pre-Approved ADU Program Handouts
Several handouts have been created to provide additional information and answer frequently asked questions regarding the Pre-Approved ADU Plans.
- Program Overview Brochure
- Program Process Handout
- Initial Considerations Handout
- Frequently Asked Questions (FAQs) Handout
Have Questions or Comments?
For questions, please contact the Planning Division via phone (949) 362-4300 or email Planning@cityoflagunaniguel.org.
Plan 1 - Studio w/ 1 Bath (350 SF) - Download the Full Plan Set Here
Download the Structural Calculations for Plan 1 Here
California Ranch 
Modern Farmhouse
Mediterranean
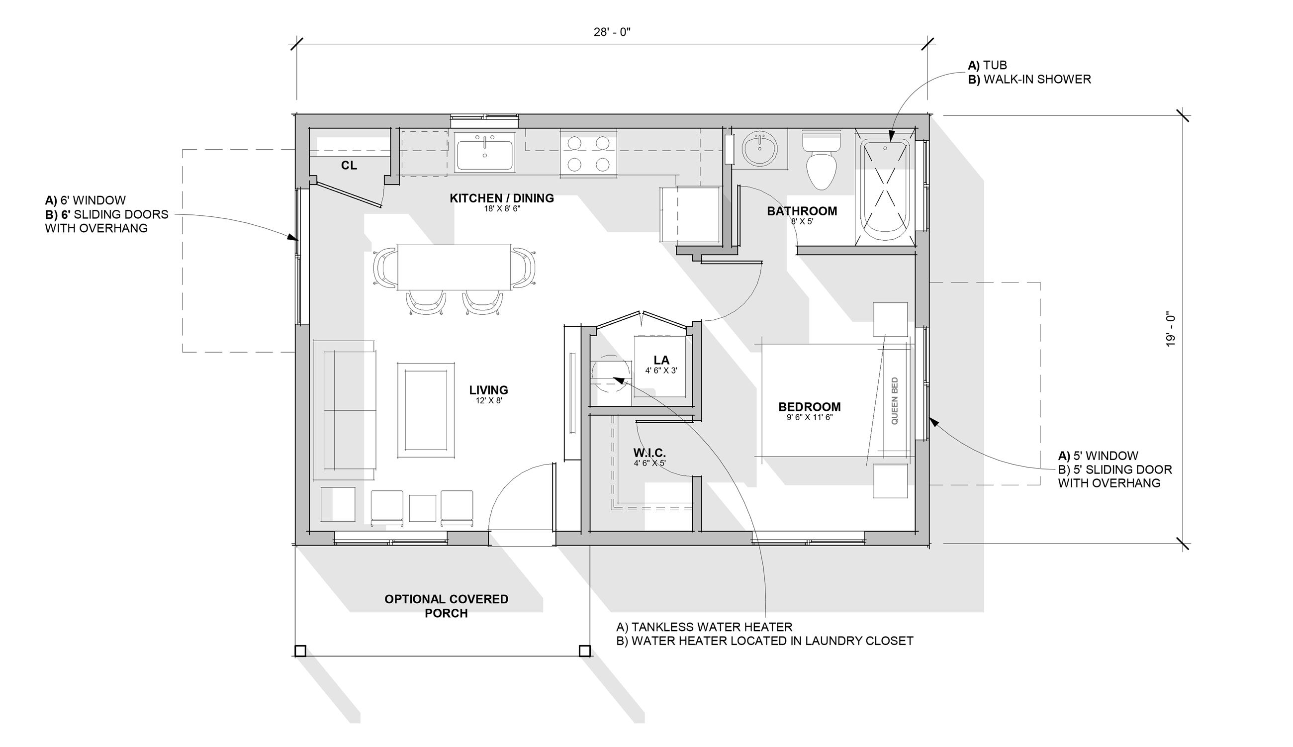
Plan 2 - 1 Bed w/ 1 Bath (532 SF) - Download the Full Plan Set Here
Download the Structural Calculations for Plan 2 Here
California Ranch Modern Farmhouse Mediterranean
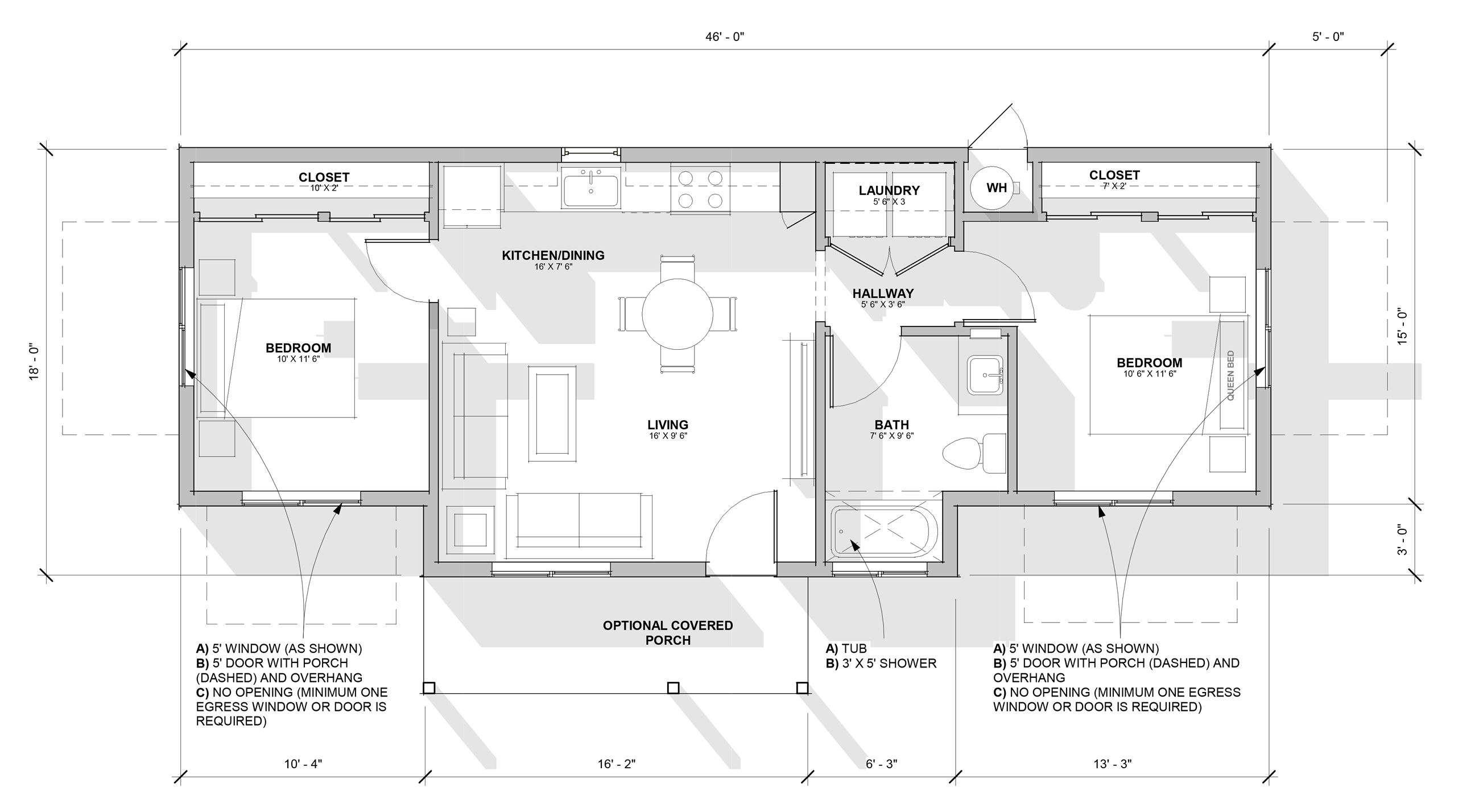
Plan 3 - 2 Bed w/ 1 Bath (757 SF) - Download the Full Plan Set Here
Download the Structural Calculations for Plan 3 Here